Biblioteca en la costa, Beidaihe
Vector Architects- Tipo Biblioteca Cultura / Ocio
- Material Hormigón
- Fecha 2014 - 2015
- Ciudad Beidaihe (Qinhuangdao)
- País China
- Fotografía Shengliang Su Xia Zhi
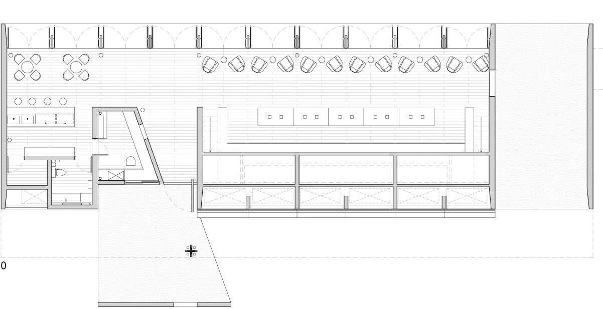
Restablecer los lazos con la naturaleza en un contexto cada vez más contaminado, y fomentar el ocio en una sociedad obsesionada con la productividad, son los dos objetivos de este conjunto de edificios vacacionales situado a poco más de tres horas de Pekín, de los cuales el más singular es la biblioteca junto a la playa. Los medios que se emplean para alcanzarlos son la exploración de los límites del espacio y el movimiento del cuerpo humano, la naturaleza mudable de la luz, y la sensación de calma que procuran las vistas del océano.
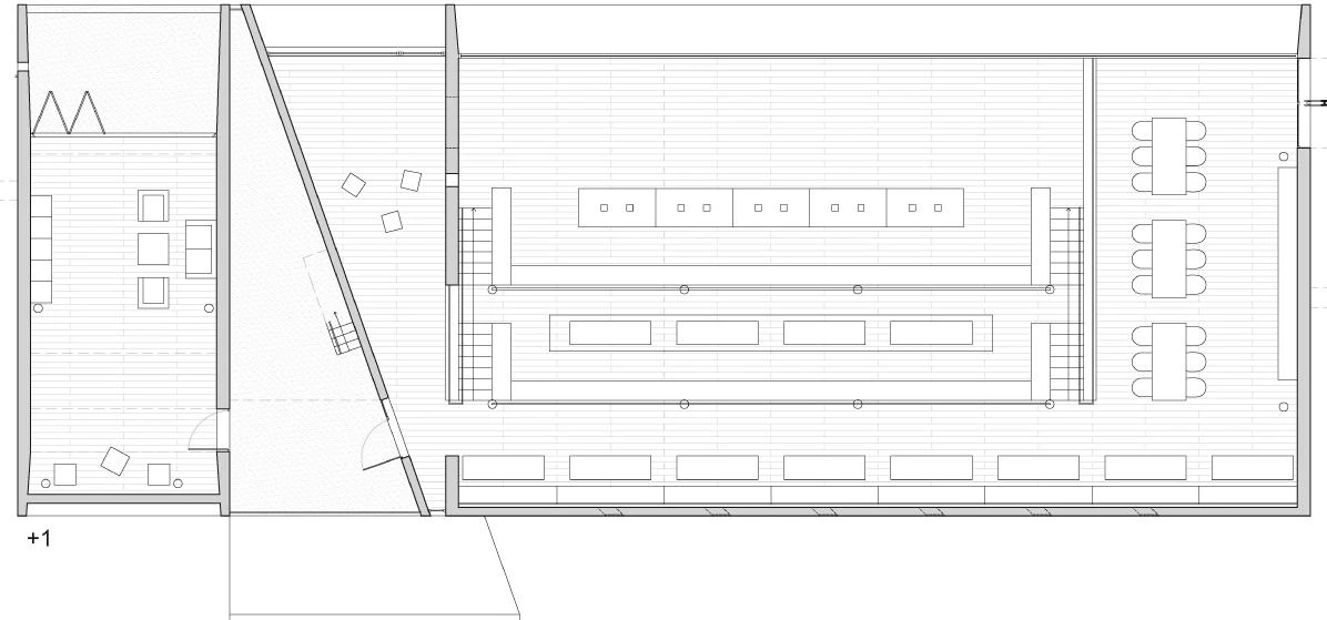
Partiendo de estos elementos, el proyecto trabaja con la sección, para dar pie a una secuencia que va enlazando distintos programas y momentos espaciales: el área de lectura, el área de meditación, la sala de actividades, el bar y la zona de descanso. Cada espacio establece una relación propia con las vistas a un océano en perpetuo cambio, y adquiere carácter merced a los diferentes momentos en que se incorporan a cada zona tanto la luz como la ventilación.
Esta graduación de las vistas y la atmósfera se consigue mediante tres operaciones cuyo sentido último es el fomento de la permeabilidad: en primer lugar, envolver el edificio con una piel acristalada practicable a nivel del suelo; en segundo lugar, disponer vigas de acero que permiten liberar la planta de cualquier servidumbre estructural y visual; y, finalmente, matizar la iluminación mediante paramentos de bloques de vidrio hechos a mano.
El espacio diáfano e iluminado así conseguido —propio de la zona más pública de la biblioteca— contrasta con el del área de meditación, construido con reflejos más marcados y sombras más profundas que sugieren una atmósfera privada e introvertida.


















Obra Work
Biblioteca en la costa Seashore Library in Beidaihe, China.
Arquitectos Architects
Vector Architects / Gong Dong (socio partner); Chen Liang (director de proyecto project architect); Yifan Zhang, Dongping Sun (dirección de obra site architect); Zhiyong Liu, Hsi Chao Chen, Hsi Mei Hsieh (equipo design team).
Consultores Consultants
Beijing Yanhuang International Architecture & Engineering Co. Ltd (estructura e instalaciones structure and MEP); Lixin Ji, Zhongyu Liu (estructura structure).
Cliente Client
Beijing Rocfly Investment.
Superficie Area
450 m².
Fotos Photos
Su Shengliang; Xia Zhi; He Bin.