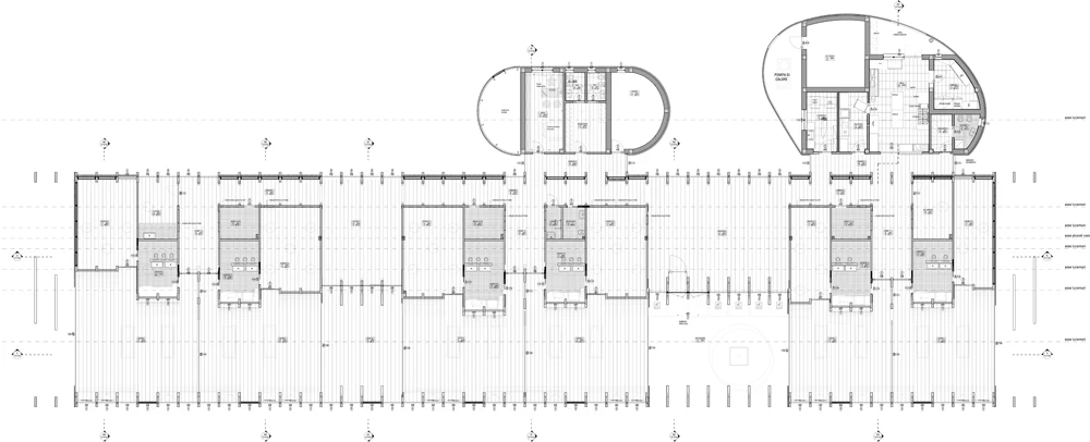
El estudio de Bolonia dirigido por Mario Cucinella es el autor de esta guardería construida en Guastalla, en la provincia italiana de Reggio Emilia. Reemplazando dos escuelas existentes dañadas en el terremoto que sacudió la zona en 2012, el nuevo edificio está diseñado con el fin de estimular la interacción de 120 niños, de entre 0 y 3 años, con el espacio circundante. La estructura de madera alberga las diferentes áreas educativas, y alterna superficies transparentes que plantean un juego visual entre el interior y el exterior. Tomando en cuenta la capacidad pedagógica de las formas y los materiales, el proyecto estudia las percepciones sensoriales relacionadas con la luz, los colores y los sonidos, además de las posibilidades táctiles. La construcción incluye placas fotovoltaicas y sistemas para la recogida de aguas pluviales, para reducir el uso de equipos mecánicos que satisfagan las necesidades energéticas de la escuela. Mario Cucinella Architects Moreno Maggi













